
Nestled along the stunning shores of Cape Cod, New Seabury offers an exclusive enclave of refined coastal living. Picture waking up to breathtaking ocean views, spending your days on championship golf courses, and unwinding with world-class dining and entertainment—all from the comfort of your custom-built luxury home.
At Northeast Classic Builders, we specialize in crafting high-end residences that seamlessly blend timeless design with modern functionality. Let us bring your vision to life with meticulous craftsmanship and personalized service.


New Seabury is one of Cape Cod’s most sought-after communities, offering a unique combination of elegance, exclusivity, and recreational
Enjoy direct access to pristine beaches, scenic coastal trails, and the charming town of Mashpee.
Tee off at The Club at New Seabury, featuring two championship golf courses with breathtaking waterfront views.
Indulge in private beach clubs, tennis courts, upscale dining, and a vibrant marina.
Experience the tranquility of living near serene freshwater ponds, offering breathtaking natural beauty and relaxation.
A blend of year-round residents and seasonal homeowners creates a welcoming yet exclusive atmosphere.
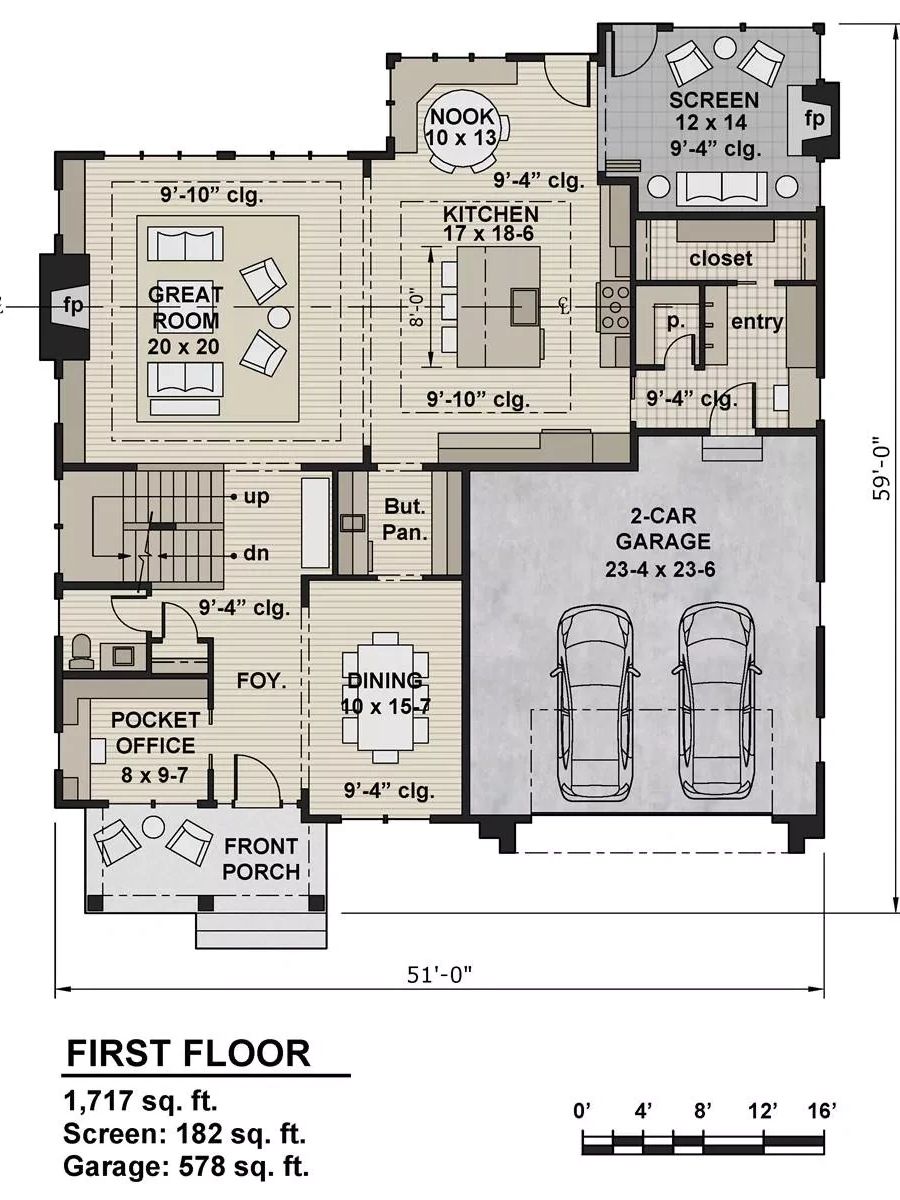
This 3,879 sq. ft. luxury farmhouse offers a timeless yet contemporary design, perfect for both coastal living and year-round comfort. Thoughtfully designed for today’s lifestyle, the home features an inviting open floor plan with high-end finishes throughout. The spacious great room flows seamlessly into the gourmet chef’s kitchen, complete with a butler’s pantry and an inviting breakfast nook with built-in seating. The formal dining room and pocket office are positioned at the front of the home, offering a balance of elegance and function. Step outside to a beautifully designed screened porch with its own fireplace, creating the perfect space for entertaining or relaxing in every season. The well-planned mudroom provides ample storage, featuring cubby spaces and a walk-in closet, conveniently located off the attached garage for easy access. Upstairs, the primary suite is a true retreat, boasting a stepped ceiling, a spa-inspired bathroom with vaulted ceilings, and a private coffee station next to the generous walk-in closet. Three additional bedrooms provide plenty of space for family and guests, including a Jack-and-Jill bath with window seats and a private ensuite guest bedroom. A spacious loft completes the upper level, offering a flexible living area for a media room, home office, or play space. Situated on a prime lot in the sought-after New Seabury community, this home offers both privacy and convenience, with easy access to beaches, golf courses, and resort-style amenities. Don’t miss this rare opportunity to customize your dream home in one of Cape Cod’s most desirable locations!

Building a luxury home requires a partner who understands craftsmanship, detail, and the essence of coastal living. With decades of experience, we deliver homes that embody timeless beauty, comfort, and functionality.
✔ Custom Architectural Design – Tailored to your vision, from grand waterfront estates to elegant golf course retreats.
✔ Premium Materials & Finishes – We source the finest materials to ensure enduring quality and sophistication.
✔ Seamless Build Process – A stress-free experience from concept to completion with clear timelines and communication.
✔ Smart Home Integration – Cutting-edge technology for security, entertainment, and energy efficiency.
✔ Energy-Efficient, Sustainable Designs – High-performance building techniques ensure a responsible and lasting investment.



Golf Court Lot
Lot Size: 0.35 Acre
Total Structure: 4,457 Ft2
Total Heated: 3,879 Ft2
1st Floor: 1,717 Ft2
2nd Floor: 2,1162
Bedrooms: 4
Bathrooms: 3.5
Garage: 2
Stories: 2
Width: 51' 0"
Depth: 59' 0"
Height: 29' 10"
Main Floor Ceiling: 9-10' 0"
Upper Floor Ceiling: 8-10' 0"
Living/Great Room Ceiling: 9-10' 0"
Primary Ceiling: 10' 0"
Framing: 2x6

We understand that a home is more than just a place to live—it’s a statement of your lifestyle. Our team is dedicated to providing an unmatched level of craftsmanship, elegance, and attention to detail. Whether you’re looking for a serene pond-side retreat or a distinguished golf-side estate, we bring your aspirations to reality.
Open today | 09:00 am – 05:00 pm |
Northeast Classic Builders
58 Oak Trail, Bolton, MA 01740
